山林里的隐秘餐厅设计,尽享神秘瞬间
2018-10-10
项目基地位于北京西六环外的大西山凤凰岭,是由两个带有独立院落的相邻民宅组成。基地的南侧是大片果林,可以看到很开阔的山景。业主希望将这个场所打造成一个偏私密的餐饮空间,委托谜舍设计进行景观、建筑外立面以及室内的全方位改造设计。
▼餐厅概览
虽然项目距离北京城区只有近40分钟的车程,但是现场感受已经完全置身于山林之间,使用洗练的设计语言处理空间与自然的关系,将自然景致引入庭院和室内。谜舍将对着果林的南侧院墙局部打开,设置了户外框景区和户外茶区,虚实结合的立面以不同的姿态引入光线,使人在多样的光影氛围中体验自然,感受自然。
▼从户外框景区和户外茶区看建筑
意在以周边山景为主角,让设计低调的姿态融入自然,以营造近人尺度的庭院。庭院有不同功能的分区,各个分区使用了不同的标高,在整体简约的基础氛围上能创造出微妙且丰富的变化。将相邻的院墙拆除,并将一米的高差,使用可演变为户外座位的楼梯进行化解,场地的缺陷巧妙的变成了具有相对私密性的户外座位区,创造了独特的户外空间体验。
▼庭院概览,将一米的高差使用可演变为户外座位的楼梯进行化解
刻意将餐厅的主入口设置在了远离庭院入口的位置,并需要经过一个非常纯粹的水泥空间才能到达餐区,这样“稍有不便”的迂回动线是为了使客人的餐饮体验更为丰富并具有仪式感,“驱车上山就餐”这个行为本身的核心并不只是食物,而是由“山景”、“庭院”、“私密”、“空间”、“文化”、“食物”等一系列元素构成的完整体验,这些元素都是由动线的延申进行串联。随着动线的推进,人可以感受到不同视角的景色,不同的空间节奏,不同的材质变化,跟随着动线完成了一次空间的深层阅读。
▼从庭院走向餐厅主入口
由开阔的庭院进入建筑内部,出现在眼前的是一个相对狭窄的室内廊道,廊道地面材料使用户外的水泥板和碎石,模糊了室内外的界限,空间尺度却骤然缩小,这样的“灰”空间极大的激活了空间的戏剧性。
▼建筑入口
室内廊道连接着兼具接待功能的酒吧区,将吧台旁边的侧窗设计为竖向折叠推窗,并将窗台板设计为室内外连通的吧桌。侧窗推开,户外酒吧即形成。水泥墙的局部留白,将文化理念写于其上,墙为空间构件,此刻亦为书画。
▼兼具接待功能的酒吧区
▼室内廊道
▼水泥墙的局部留白,将文化理念写于其上
另一个明显的空间节奏变化出现在由一层过道进入到开放餐区的过程。房子一层现状层高不高,谜舍将一层开放餐区与二楼的楼板切除,在较为低矮的一层打造出了一个小型吹拔(挑空)区域。人由低矮狭窄的过道走出,进入到一个层高七米的高耸空间,竖向尺度的变化让空间的体验更为丰富。
▼过道旁的饮茶空间
▼从一层过道进入到开放餐区
▼层高七米的挑空一层开放餐区
▼在开放餐区仰望
极简纯白的楼梯空间是相对现代的一层与相对素雅的二层之间的重要过渡空间。
▼楼梯间
二层空间大多为餐区,根据房子本身的结构格局,将不同的分区设置为私密包间和开放餐区,以满足不同的就餐需求。二层空间的南侧立面有很好的山景,保留了二层的坡屋面,并使用竹席进行包裹。古朴质感的人字屋面与户外的自然景色形成了很好的呼应。
▼二层用餐空间
▼包厢
因为空间层次较为丰富,非常重视从每个洞口看向下一次序空间的“框景”,因为这也是身处在某一个具体空间就餐中的食客的常规视角。将所有洞口处理成纯粹的造型,没有包裹多余的垭口,在空间中创造出一幅幅极简的画作。
▼卫生间
空间多使用整面的木制滑门以及隐形门提高空间视觉的整体性。业主收藏了很多非常有质感的古布。在这个空间里,也思考了将这些古布以不同的方式巧妙的融入空间。软性材料的介入很好的柔化了空间氛围,并提升了空间品质。
▼将业主收藏的古布以不同的方式巧妙的融入空间
空间的踢脚使用了只有2公分高的黑钛金属,地面材料交接的部分使用细黄铜条进行分割,展龛由细腻的黑色氟碳钢板制成,以提升空间的精致感。做旧的铜板,粗犷的水泥墙也同时出现在空间中。材料的选取上兼顾现代和传统的结合,打造既简练又有质感的空间。整个项目完工后最终呈现出的现代感,却又能完美的与自然相融的独特气质。既保持了现代人的生活方式和审美习惯,并对于所在的环境有深层次的呼应,这也是对于场所性的一种理解。
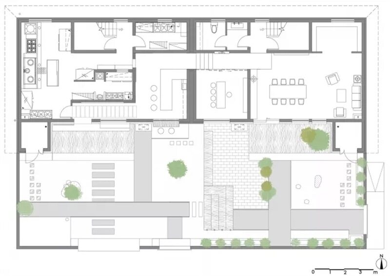
▼一层平面图
▼二层平面图
▼剖面图
项目:三时享院
业主:北京三时生活文化发展有限公司
面积:520平方米
完工时间:2018年9月
图文来源于@网络,如有侵权,联系删除。
上一个: 湘菜餐厅装修设计,领湘菜之风味
下一个: 2000㎡欧式风格足浴会所装修设计
扫描二维码
关注官方微信公众号




