平面设计图怎么看?掌握5技巧轻松看懂室内设计平面图
2022-05-25
很多人在买房与找设计师时,看到平面设计图就很头大,觉得一张纸密密麻麻的又O又X难以理解,但是又担心看不懂如果被建商骗,或是无法跟设计师沟通就麻烦了,百小编要跟你说其实平面设计图一点也不难,只要掌握这五点,看平面设计图根本超简单!
1.面向大门往内看
拿到平面设计图时首先先把大门的方向对准自己,大门方向的图示为一个1/4圆,有时候还会加上箭头做辨识。
平面设计图是面向大门往内看范例1

平面设计图是面向大门往内看范例2
2.确认房厅卫
接下来我们从大门开始顺著动线来确认格局,一般我们常会说几房几厅几卫(几间房间、几个厅、几个卫浴)来表示格局,例如下面的平面设计图就是标准的三房两厅两卫格局,代表有三间房、客厅、餐厅、两间卫浴,而如果有额外的空间想要讲得更清楚也可以另外注明:如更衣室、阳台等等。
平面设计图观看房厅卫格局技巧
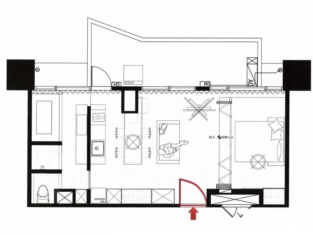
3.基础图示懂这几个,柜体家具位置马上懂
再来就是一般人常常搞不懂的图示了,放轻松,让百小编用下面这张平面设计图来解释给你听。
从大门玄关进来之后旁边有四个画有X的长方形代表鞋柜,而家里在格子里画X的都代表柜子:客厅电视柜、书房书柜、餐厅橱柜、卧室衣柜等。
接著往前走看到一排斜线则代表屏风,一般在玄关客厅处设有玄关多是为了避免穿堂煞。来到客厅,沙发、茶几不用说,电视墙则有三个收纳柜体,再来走进厨房,比较特别的是画有虚线X处是放置冰箱之处。房里面我们可以看到书桌、椅子、床都非常容易辨识,⊕则代表桌灯或立灯,最后走进卫浴,洗脸台、马桶、浴缸一目了然,是不是非常简单呢!
平面设计图柜体家具位置观看方式
4.换算玄关大小,实际感受比例尺
一般比例尺有两种,一种为1:50跟1:100(单位为公分),也就是说纸上1公分,代表实际距离50公分或100公分,而通常50坪内会使用1:50的比例尺,但是纸上谈兵,我们对大小常无法感受,这时我们可以先换算玄关的长宽,再用量尺在空间里量出大小实际体会,才不会平面设计图看起来很美好,事实上却小到不行。
日作空间公司玄关设计案例
使用平面设计图换算玄关大小,实际感受比例尺
5.方正最好,避免长型屋、中宫厕
在买房时其实最需要注意的就是格局,当然一位好的设计师可以化腐朽为神奇,但是拆除再重新隔间代表的就是预算会被提高再提高,就算房价再低但在设计装潢上反而可能比不动隔间的格局高上一倍之多,需要谨慎思考。
一般来说房子方正是最适合的格局,动线顺畅也比较少有浪费、畸零的空间产生。而说到不适合的格局,以前的长形屋就难有好采光,并容易因为走道过长而造成空间无法利用,另外以风水来看,房子中间为厕所易生病漏财也是需要避免的,买屋前透过平面设计图就能一览房子的所有格局,才不会买到格局不好的房子。
上一个: 不是想换就能换?电子锁、智慧门锁原来有这些安装条件!
下一个: 办公室做隔断,打造流畅动线不难!
扫描二维码
关注官方微信公众号




